大阪市東成区、西成区、不動産屋、玉造、大阪市生野区一戸建て、中古マンション、中古住宅、売地
賃貸物件
テナントビル・貸し工場など
マンション
新築(住宅・土地)
中古(一戸建・マンション)
収益物件(オーナー物件)
会社概要
お問い合わせ
MENU
▼
▲
ホーム
当社の強み
賃貸物件
▼
▲
┗ 賃貸物件
┗ テナントビル・貸し工場など
売買物件
▼
▲
┗ 売買物件
┗ マンション
┗ 新築(住宅・土地)
┗ 中古(一戸建・マンション)
┗ 収益物件(オーナー物件)
その他物件
会社案内
▼
▲
┗ 会社概要
┗ お問い合わせ
ブログ
お知らせ
HOME
> 中古一戸建て 東大阪市若江西新町2丁目
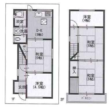
中古一戸建て 東大阪市若江西新町2丁目
賃料/価格
600万円
管理費
敷金/保証金
ヶ月
礼金
ヶ月
所在地
大阪府東大阪市若江西新町2丁目
交通
近鉄奈良線八戸ノ里駅 徒歩12分
設備・条件
引渡/入居時期
相談
向き
築年月
1979/08
部屋階数
階
面積
68.09m²
建物構造
木造
間取り
5DK
備考
Author
risehome
Posted on
2017年5月10日
2017年5月10日
Categories
中古(戸建て・マンション)
,
売買物件
,
戸建て
マンション
戸建て
オフィス・店舗・倉庫
駐車場
テナントビル・貸し工場など
マンション
新築(土地・新築住宅)
中古(戸建て・マンション)
収益物件・オーナー物件(マンション・所有区分など)
物件検索
ご希望の種別を選択して下さい
種別選択
売買 全て
【売地】売地
【売地】建付土地
【売戸建】新築戸建
【売戸建】中古戸建
【売戸建】中古テラス
【売マン】中古マンション
【売マン】中古タウン
【売建物全部】アパート
賃貸 全て
【賃貸居住】マンション
【賃貸事業】倉庫
【賃貸事業】マンション
以下ご希望の条件を選択して物件検索ボタンを押して下さい
駅選択
路線選択
駅選択
市区選択
県選択
市区選択
賃料
下限なし
3万円
4万円
5万円
6万円
7万円
8万円
9万円
10万円
11万円
12万円
13万円
14万円
15万円
16万円
17万円
18万円
19万円
20万円
30万円
50万円
100万円
~
3万円
4万円
5万円
6万円
7万円
8万円
9万円
10万円
11万円
12万円
13万円
14万円
15万円
16万円
17万円
18万円
19万円
20万円
30万円
50万円
100万円
上限なし
価格
下限なし
300万円
400万円
500万円
600万円
700万円
800万円
900万円
1000万円
1100万円
1200万円
1300万円
1400万円
1500万円
1600万円
1700万円
1800万円
1900万円
2000万円
3000万円
5000万円
7000万円
1億円
~
300万円
400万円
500万円
600万円
700万円
800万円
900万円
1000万円
1100万円
1200万円
1300万円
1400万円
1500万円
1600万円
1700万円
1800万円
1900万円
2000万円
3000万円
5000万円
7000万円
1億円
上限なし
駅歩分
指定なし
1分以内
3分以内
5分以内
10分以内
15分以内
築年数
指定なし
1年以内
3年以内
5年以内
10年以内
15年以内
20年以内
面積
下限なし
10m²
15m²
20m²
25m²
30m²
35m²
40m²
50m²
60m²
70m²
80m²
90m²
100m²
200m²
300m²
400m²
500m²
600m²
700m²
800m²
900m²
1000m²
~
10m²
15m²
20m²
25m²
30m²
35m²
40m²
50m²
60m²
70m²
80m²
90m²
100m²
200m²
300m²
400m²
500m²
600m²
700m²
800m²
900m²
1000m²
上限なし
所在地
〒537-0024 大阪府大阪市東成区
東小橋1丁目18番1号
株式会社ライズホーム
Fudousan Plugin Ver.1.7.8